Se connecter
G

Renovationnice

Le 08/04/2026 à 14h04

Plan vasque Wedi 80 Aménagement Agencement

Bonjour

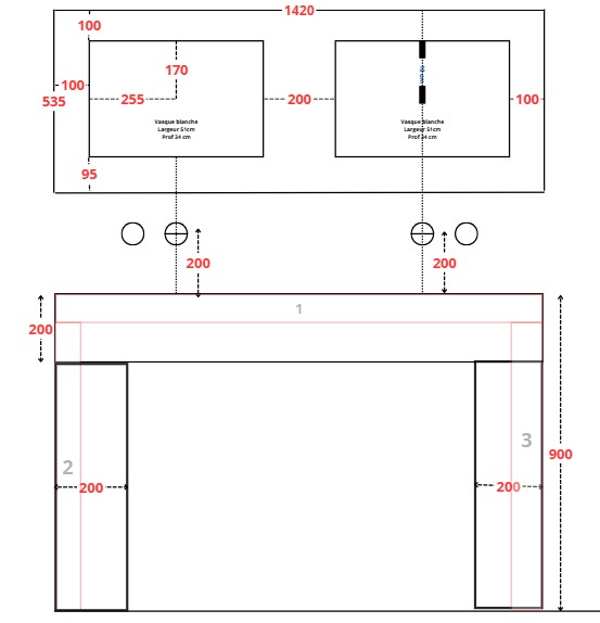
Je souhaiterai réaliser un plan vasque avec 2 vasques à encastrer par dessus posé sur deux jambes.
Un panneau décoratif de 20cm sera collé sur les jambes et plan pour être carrelé avec du zellige.

dimensions:
- longueur 142 cm
- largeur 53,5
- vasque 51 x 34 cm
- structure en rouge
- panneau décoratif en noir
-  le tout fait avec du WEDI 80

Questions 
- les 3 panneaux seront collés entre eux avec de la colle polymère 310 - est ce suffisant ? doit on les visser ?
- le tout sera collé au carrelage  de la colle polymère 310 - est ce suffisant ? doit on les visser ? 
- les panneaux décoratifs seront collés avec la même colle - doit on ajouter des équerres ?
- une bande sera réalisée entre les panneaux décoratifs.
- doit on ajouter un tasseau sous le plan ?

Merci

  • 36e2b469-plan-vasque.jpg
Répondre
AD

Administrateur

13/04/2026 à 11h04

Bonjour, 

la colle wedi 610 ici va se suffire entre éléments, éléments aux murs, et étanchéité au périmètre. 

cdt 

PVayssie 

RE

Renovationnice

13/04/2026 à 16h04

Ok merci, donc pas besoin de tasseau ?
ni d'équerre car les panneaux décoratifs de 20 cm seront collés sur le Wedi 8cm ?

AD

Administrateur

16/04/2026 à 13h04

Bonjour, 

Non pas de tasseaux, si collage sol/mur et entre éléments en continu et en “s”  avec colle wedi 610 uniquement. 

Résultats - page 1 (3 résultats au total)

Veuillez vous connecter pour répondre à ce sujet

Gestion de vos préférences en matière de cookies
Ce site utilise des cookies et autres traceurs pour assurer son bon fonctionnement, améliorer votre navigation, mesurer l’audience, vous proposer des contenus multimédias et des publicités personnalisées. Les cookies techniques sont indispensables et toujours activés. Les cookies analytiques et marketing, soumis à votre consentement, nous aident à comprendre l’usage que vous faites du site et à vous proposer des contenus adaptés à vos centres d’intérêt. Vous pouvez à tout moment accepter, refuser ou personnaliser vos choix. Votre consentement est libre et peut être retiré à tout moment. Pour plus d’informations, vous pouvez consulter notre page « Charte de données personnelles ».